下载了

1.完成资料翻译一份(3000字以上)
2.完成毕业设计调研报告一份;
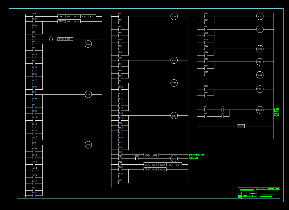
3.完成知识竞赛抢答器PLC设计
4.完成系统程序设计;
5.完成毕业设计说明书一份;6.完成相关图纸。



下载资源到电脑,查找使用更方便
¥49.00
最新动态
用户留言